您现在的位置:中国农业仪器网 > 技术文章 > 恒温恒湿箱的工作原理(内附恒温恒湿箱内部结构图)
恒温恒湿箱的工作原理(内附恒温恒湿箱内部结构图)
来源: http://www.polyscience.com.cn/ 类别:技术文章 更新时间:2021-08-06 阅读次
恒温恒湿箱的工作原理(内附恒温恒湿箱内部结构图)
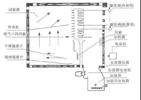
恒温恒湿箱的工作原理是以模仿自然环境中的高温、低温、潮湿、干燥的气候条件,在其箱体内通过各控制系统相互协作来实现,其原理产生方式主要通过空气室内空间加热、制冷、加湿、除湿,通过一系列的系统和组件之间协同作用,就完成了加热、制冷、加湿、干燥的动作,进而实现实验过程中的恒温恒湿环境,总的来说,恒温恒湿箱由调温和增湿两部分组成。各部分的详细工作原理如下:
1、恒温恒湿箱的温度调节原理
恒温恒湿箱的温度调节通过箱体内置温度传感器,采集数据,经温度控制器调节,接通空气加热单元来实现增加温度或者调节制冷电磁阀来降低箱体内温度,以达到控制所需要的温度。
2、恒温恒湿箱的湿度调节原理
恒温恒湿箱的湿度调节是通过体内置湿度传感器,采集数据,经湿度控制器调节,接通水槽加热元件,通过蒸发水槽内的水来实现增加箱体内的湿度或者调节制冷电磁阀来实现去湿作用,以达到控制所需要的湿度。
3、恒温恒湿箱内部结构图

- 【中国农业仪器网】声明部分文章转载自其它媒体,转载目的在于传递更多信息,并不代表本网赞同其观点和对其真实性负责,且不承担此类作品侵权行为的直接责任及连带责任。如涉及作品内容、版权和其它问题,请在30日内与本网联系。
推荐仪器
最近更新仪器
相关技术文章









